Nachfolgenutzung Gasthof Hirsch Probstried

Nachfolgenutzung Gasthof Hirsch Probstried

Der Gasthof Hirsch in Probstried war seit Jahren geschlossen und das Grundstück ungenutzt. Die Absicht der Baumaßnahme ist es den Gasthof mit Gästezimmern, Veranstaltungssaal und Biergarten zu reaktivieren und zusammen mit einem Dorfladen und Wohnungen zu einem neuen Mittelpunkt in Probstried zu entwickeln.

Städtebauliches Konzept
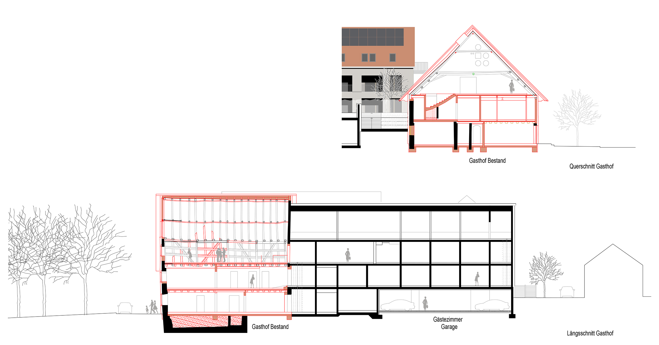
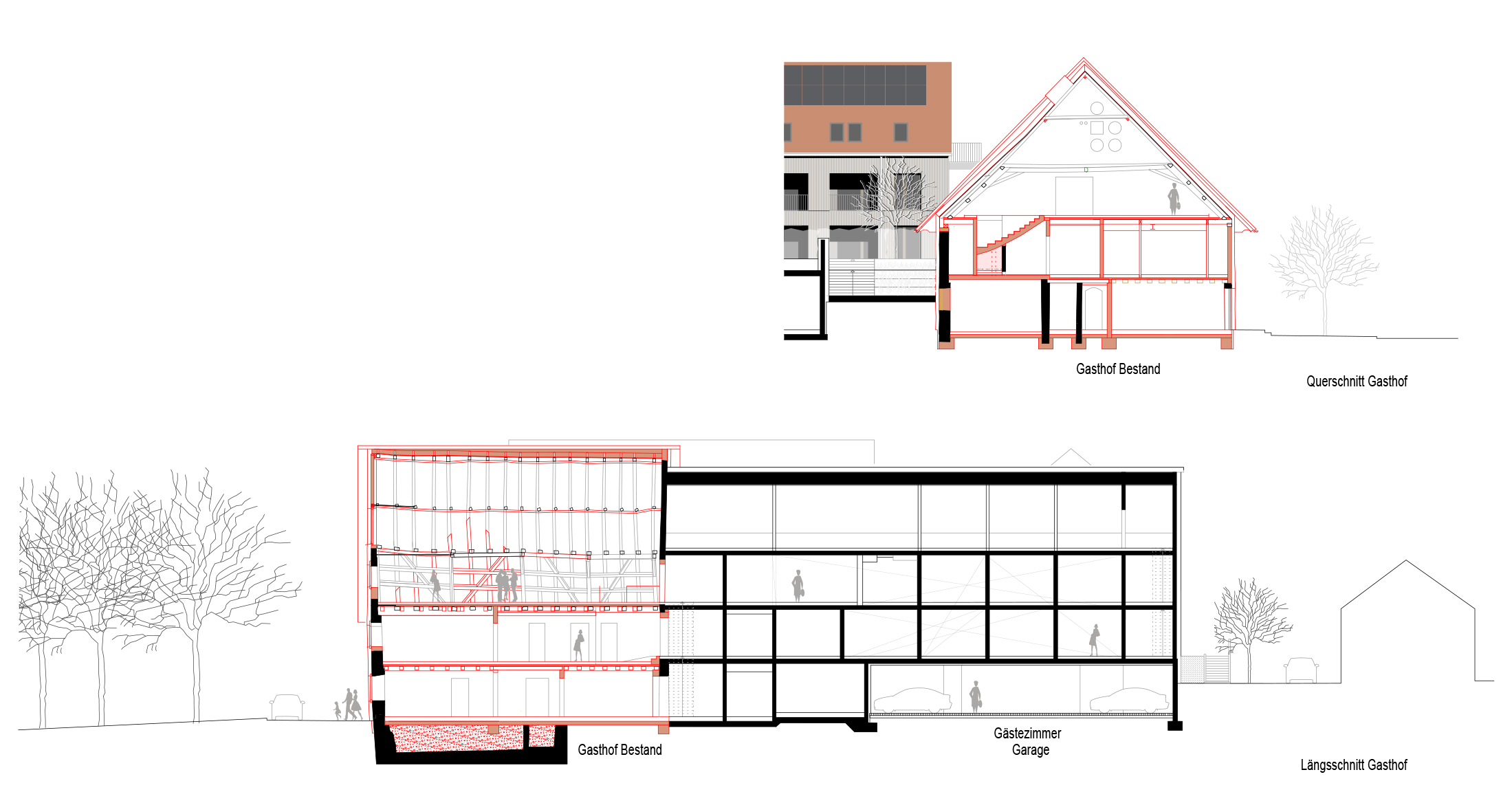
Der historische Gasthof Hirsch, befreit von später angefügten Nebengebäuden, wurde als identitätsstiftendes Gebäude erhalten und ist zentraler Baustein des neuen Areals. Seine ortsbildprägende Dominanz wird durch einen annähernd gleich langen Ersatzbau, anstelle des abgebrochenen Wirtschaftstrakts, bewahrt und bietet der dahinterliegenden Wohnbebauung einen wirksamen Schutz vor dem Lärm der Hauptstraße.
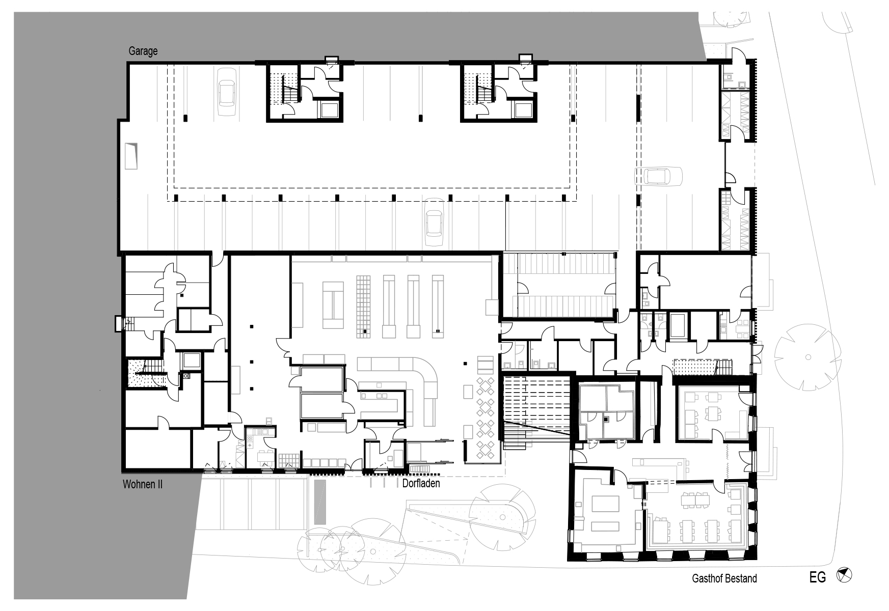
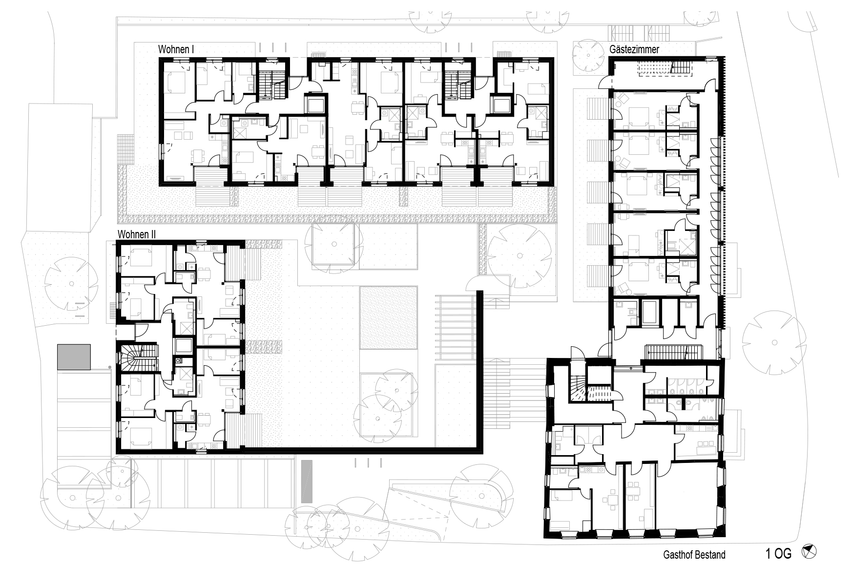
Der Gasthof bildet mit zwei Wohngebäuden im Osten und Norden des Planungsgebiets einen großzügigen, 3-seitig gefassten, nach Westen offenen, ruhigen und grünen Hofraum, auf den sich alle Wohnungen und die Gästezimmer des Gasthofs orientieren.  Das Niveau des Hofes entwickelt sich aus den hangseitigen Geländehöhen und bildet ein gegenüber dem Gasthof und dem Wirtshalder Weg ein um circa ein Geschoß angehobenes Gartenplateau. Darunter ,auf EG-Niveau, liegt die Garage und der Dorfladen, der sich nach Westen zum Dorfplatz öffnet.
Der Wirtshalder Weg mündet auf den neuen Dorfplatz, der sich gerahmt vom Gasthof Hirsch mit seinem baumüberstandenen Biergarten und dem Dorfladen nach Westen zur grünen Mitte öffnet und den Blick auf die Kirche St. Cornelius und Cyprian  freigibt. Ergänzt mit Maibaum, Dorfbrunnen und langer Bank wird er zum Treffpunkt und zur neuen Mitte.

Gasthof Hirsch
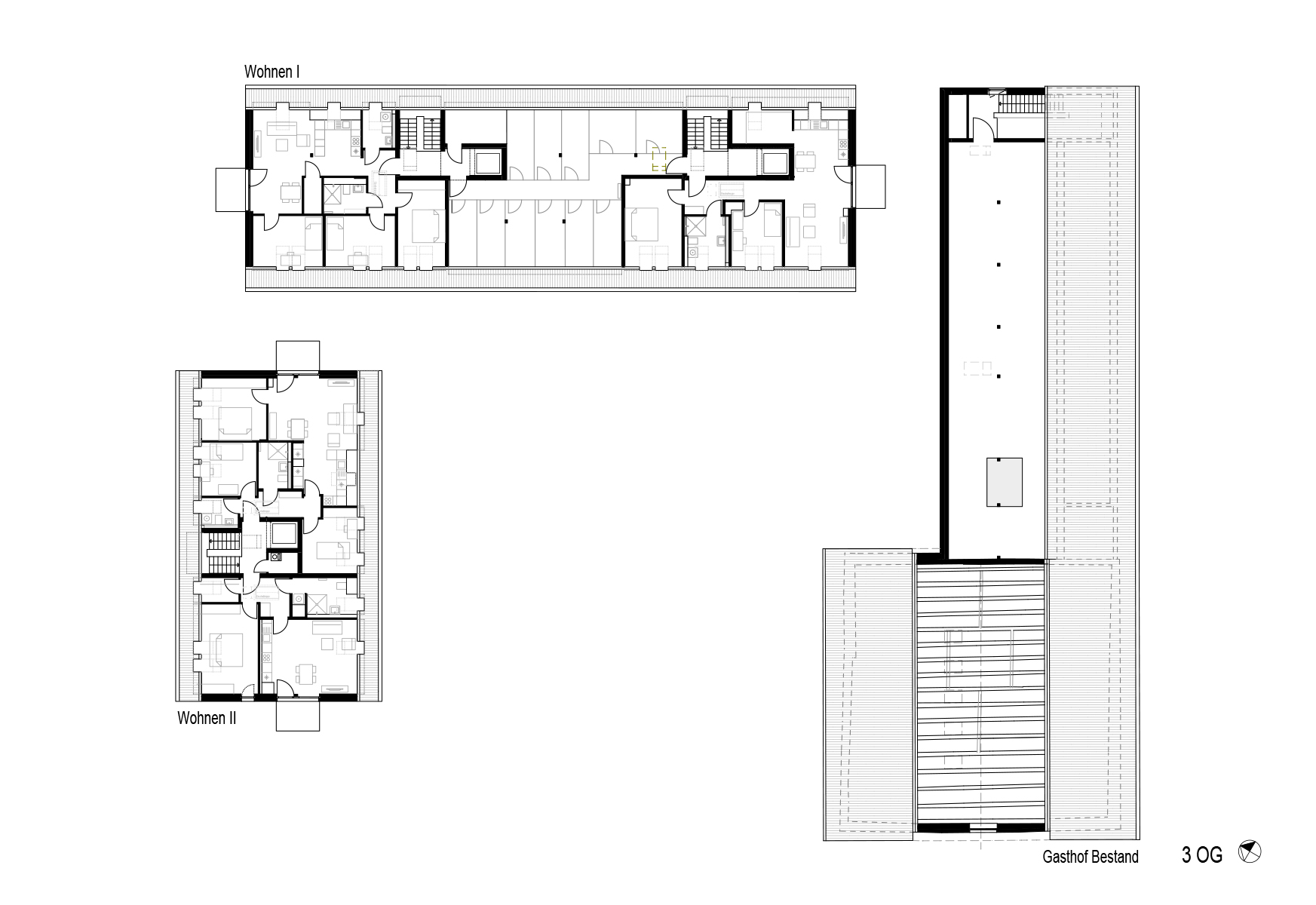
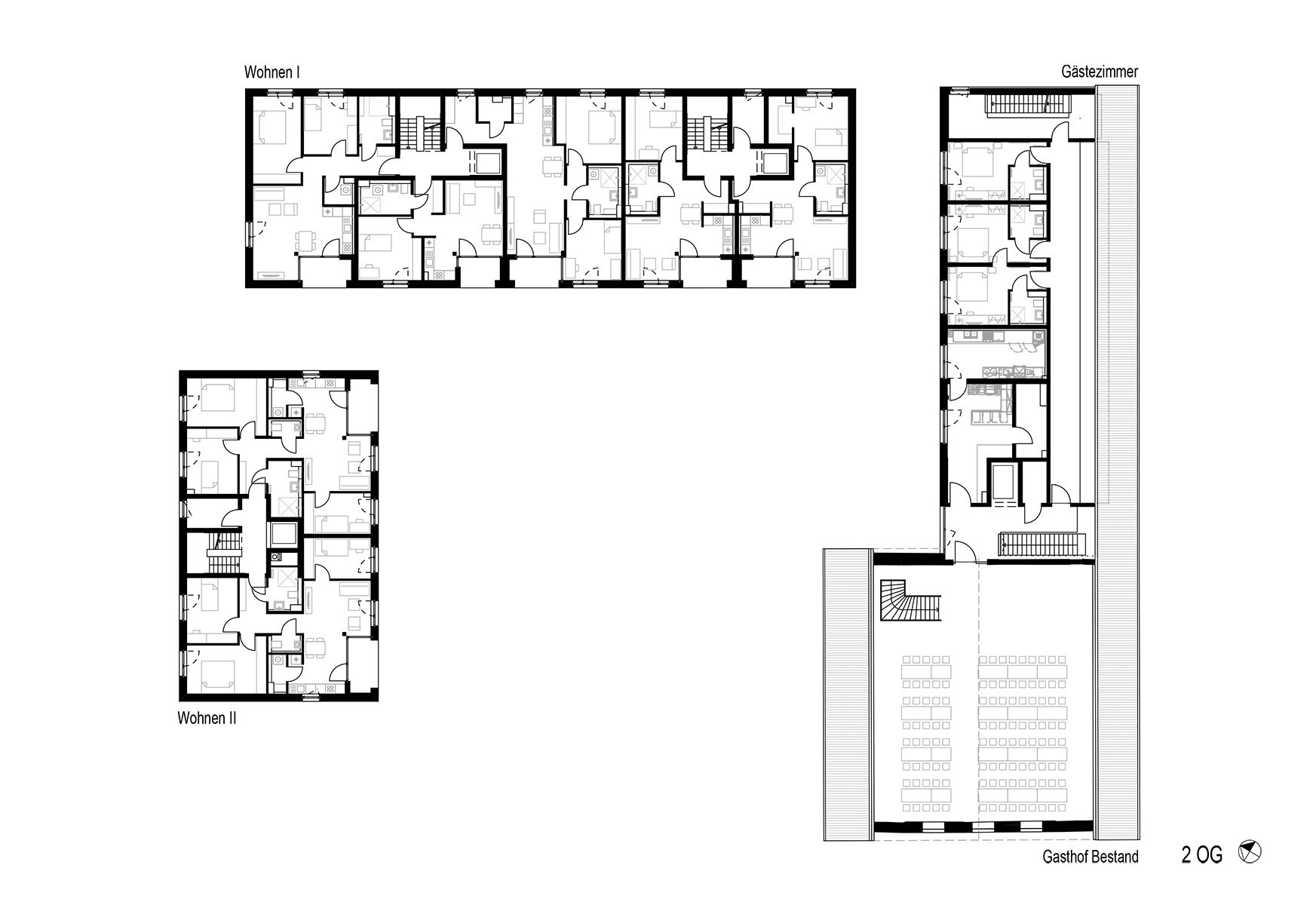
Ziel der Sanierung war es den Charakter des Gasthofes zu bewahren. Die Grundrissstruktur wurden weitestgehend erhalten. Lediglich die Belegung der Räume wurde teilweise anders organisiert. Empfangen wird man in der großzügigen Diele, die auch die Theke aufnimmt. Diese bildet eine offene Verbindung zur Stube. Eine moderne Küche gliedert sich direkt an und ermöglicht eine direkte Bewirtung des bestehenden Biergartens. Die Stube wurde durch eine Kleine Stube ergänzt. Im 1. Obergeschoss befindet sich eine Betriebswohnung, Personal- und Nebenräume und eine großzügige WC-Anlage. Im Saal unter dem Dach wird die grandiose Konstruktion des liegenden Dachstuhls gefeiert und erlebbar. Der neue Längsbau schließt über ein als Fuge interpretiertes Treppenfoyer an das Bestandsgebäude an. Es dient als neue, barrierefreie Erschließung des Gasthofs, des Saals und der Gästezimmer.
Die Bausubstanz wurde in großen Teilen gewahrt und durch konstruktiv erforderliche Bauteile ergänzt. Die Massivität des Baukörpers und der alte Charakter bleiben trotz des Einsatzes von WDVS durch traditionelle Putztechniken erhalten. Genauso feinfühlig wurden die Innenräume bearbeitet, wobei sich ergänzte Bauteile nicht verstecken. Gezielt wurden bestehende Materialien, wie das Bruchsteinmauerwerk im WC und die Ziegelwand im Foyer freigelegt und der imposante Holzdachstuhl im Saal inszeniert.
Eiche ist das dominierende Material in den Stuben im Erdgeschoss. Die Belegung des Bodens und die Fertigung der Sitzbank, Tische, Stühle und Theke schaffen einen natürlichen und heimeligen Charakter. Im Foyer, der WC-Anlage und in den Gästezimmern führt der gezielte Einsatz von Farben zu einem besonderen Erlebnis im gesamten Haus.

Dorfladen
Eine großzügige Glasfront markiert den Eingang des Dorfladens und öffnet sich mit einem Café an der Ecke zum Dorfplatz. Der Laden sichert die Nahversorgung im Dorf und bildet einen Treffpunkt für Jung und Alt.

Wohnen
In den beiden Wohngebäuden entstanden insgesamt 18 Wohneinheiten bestehend aus 1–5 Zimmer-Wohnungen. Diese orientieren sich mit ihren Loggien und Terrassen zum privaten Innenhof.
Im Gegensatz zur Massivbauweise des Gasthofs Bestand sind alle Neubauten auf einem massiven Stahlbetonsockelgeschoss in Holzhybridbauweise errichtet. Die Vorfertigung der Module ermöglicht eine effiziente und nachhaltige Errichtung der Gebäude. Eine vertikale Holzschalung bildet die Fassadenhaut. Holzbalken, teilweise aus Abbruchmaterial, charakterisieren die Südfassade des Gasthof Anbaus und die Eingangsfassade des Dorfladens.

Technische Gebäudeausrüstung
Eine Pelletheizung in Verbindung mit einer Wärmepumpe und Photovoltaikanlage auf den Dächern der Wohngebäude kann die gesamte Anlage sinnvoll und wirtschaftlich mit Wärme und Strom versorgen. Um eine angemessene Raumluftqualität zu schaffen, werden die Räumlichkeiten des Gasthofes mit einer raumlufttechnischen Anlage mit Wärmerückgewinnung ausgestattet.

Projekt:
Nachfolgenutzung Gasthof Hirsch

Ort:
Probstried-Dietmannsried

Bauherr: 
Gemeinde Dietmannsried

Leistungsphasen: 
LPH 1 – 9

Status:
Eröffnung Gasthof & Dorfladen Dezember 2025
Wohnen & Gästezimmer in Ausführung

Fläche Planungsgebiet: 
3.349 m²

Grundfläche (§19 Abs. 2+4 BauNVO):
2.920 m²

Grundflächenzahl (GRZ):
1,15

Geschossfläche (§20 Abs. 2+3 BauNVO):
3.786 m²

Geschossflächenzahl (GFZ):
1,13

Baumasse (§21 BauNVO):
13.010 m²

Baumassenzahl (BMZ):
3,88

Wohnfläche (WoFlV):
1.257 m²

Wohnungen:
18 WE

Gewerbliche Nutzfläche (DIN 277):
1.290 m²

Bruttogrundfläche (DIN 277):
Gesamt: 6.031 m²

Bruttorauminhalt (DIN 277):
Gesamt: 18.340 m³

Bauleitung:
Ingenieurbüro Horner

Bauakustik:
Wölfel Engineering GmbH + Co. KG

Baustatik & Tragwerksplanung:
Pache Heim Ingenieure GmbH

Brandschutz:
Architektur und Brandschutz Dipl.-Ing. Eva Specht

Elektroplanung:
EPW Elektroplanung Wohlfahrt

HLS-Planung:
Ingenieurbüro Schötz

Landschaftsarchitektur:
Schegk Landschaftsarchitekten

Wärmeschutz:
kW Energieexperten GmbH