New Work LEO146, München

New Work LEO146, München

NEW WORK
Der Fokus lag auf der gesamtheitlichen Betrachtung des Gebäudes mit dem Ziel bestehenden Strukturen zu hinterfragen und ein neues Raumangebot für eine sich stetig ändernde Arbeitswelt zu schaffen. Das Aufbrechen von Zellen- und Einzelbüros und die Transformation in Open Space Flächen in Ergänzung mit flexibel gestalteten Meetingbereichen und Ruhezonen ermöglicht den Mitarbeitern ein individuelles auf die jeweiligen Bedürfnisse ausgerichtetes Arbeiten.

LOOP
Als Loop wird eine frei schwingende Linie bezeichnet, die in einer offenen Bürolandschaft hierarchiefrei verschiedene Bereiche umfährt und verbindet. Der Loop bewegt die Leute dazu aneinander vorbeizugehen und sich zu begegnen, um die Kommunikation zu fördern und die Zusammenarbeit zu stärken.

ORDNUNG UND FREIHEIT
Die Inneneinrichtung besteht aus einer begrenzten Anzahl verschiedener Elemente, die in den einzelnen Ebenen jeweils neu gemischt werden. Durch die Mischung erscheinen die Räume nicht uniform, eher „chaotisch“ bringt sie Abwechslung und hohe Flexibilität mit sich.
Die Individualität steht im Vordergrund mit Wünschen und persönlichen Vorlieben. Unterschiedliche Angebote reagieren auf die Gruppengröße, den Anlass und die jeweilige Stimmung. Die Anzahl der unterschiedlichen Elemente ist begrenzt, sie kehren wieder, das bringt die gewünschte Ordnung im Chaos.

CUBES
Schallisolierte Kapseln verschiedener Größen werden in die offenen Arbeitsräume eingefügt, um konzentriertes Arbeiten zu ermöglichen. Ausgehend von einem freistehenden, modularen System können die Rückzugsboxen für eine bis maximal vier Personen sein. Die Außenseite der Kapseln ist einfarbig lackiert mit großformatiger Beschriftung; dabei kommt ein Dreiklang von Farben zum Einsatz. Ihr Inneres ist individuell ausgekleidet. Die Boxen garantieren höchste Vertraulichkeit.

TEAMTISCH
Hiermit ist ein Büroarbeitstisch gemeint, der keinen festen Arbeitsplatz darstellt. Die Tische werden von verschiedenen Mitarbeitern geteilt, um Platz und Kosten zu sparen. Der TeamTisch berücksichtigt auch, dass nie alle Mitarbeiter gleichzeitig da sind, wegen Urlaub, Dienstreisen, Krankheit oder Homeoffice. Er bietet zudem den Vorteil von Flexibilität und Ordnung.

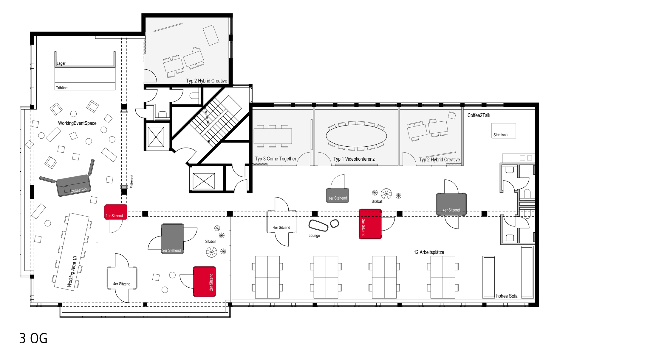
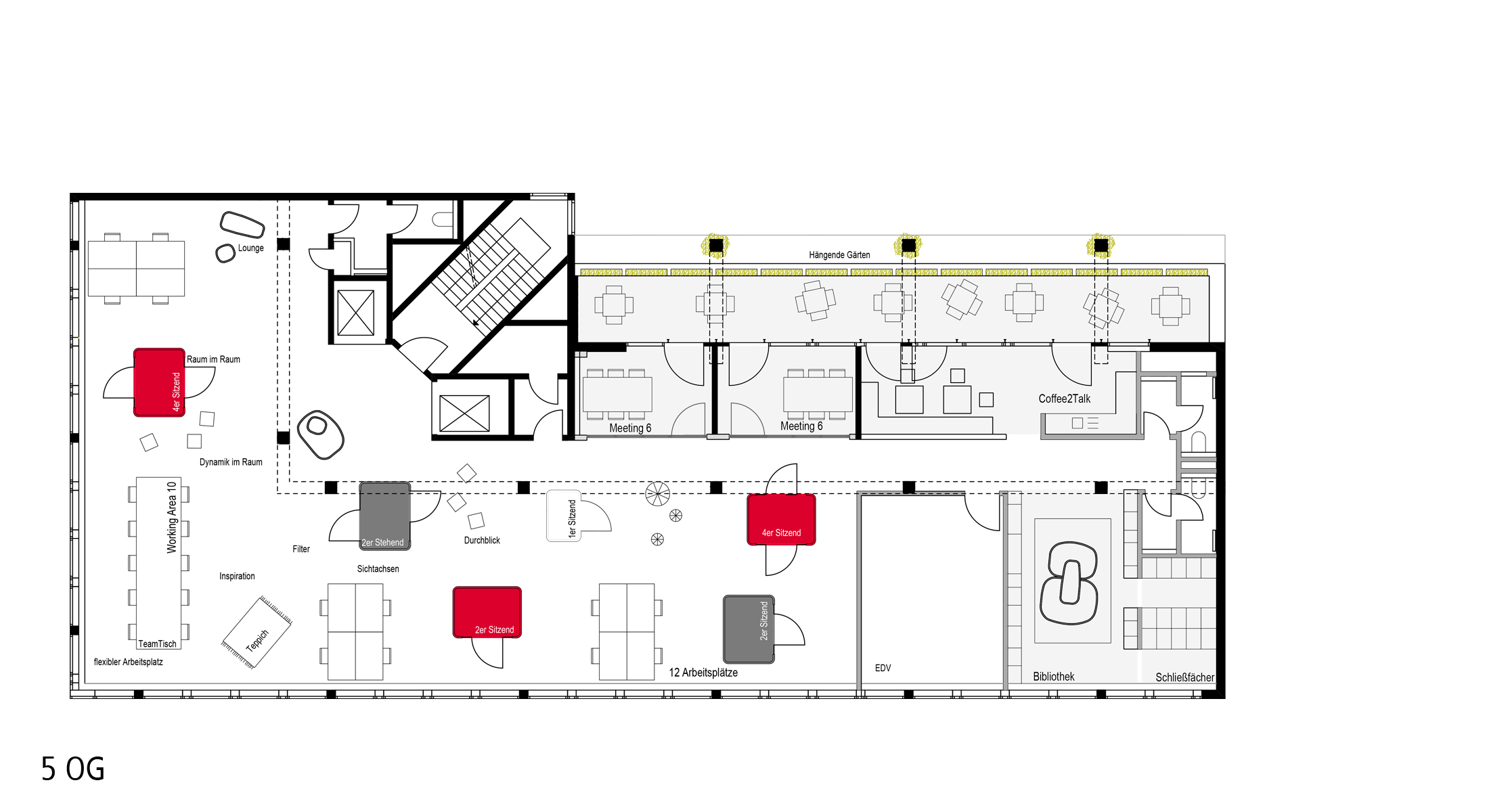
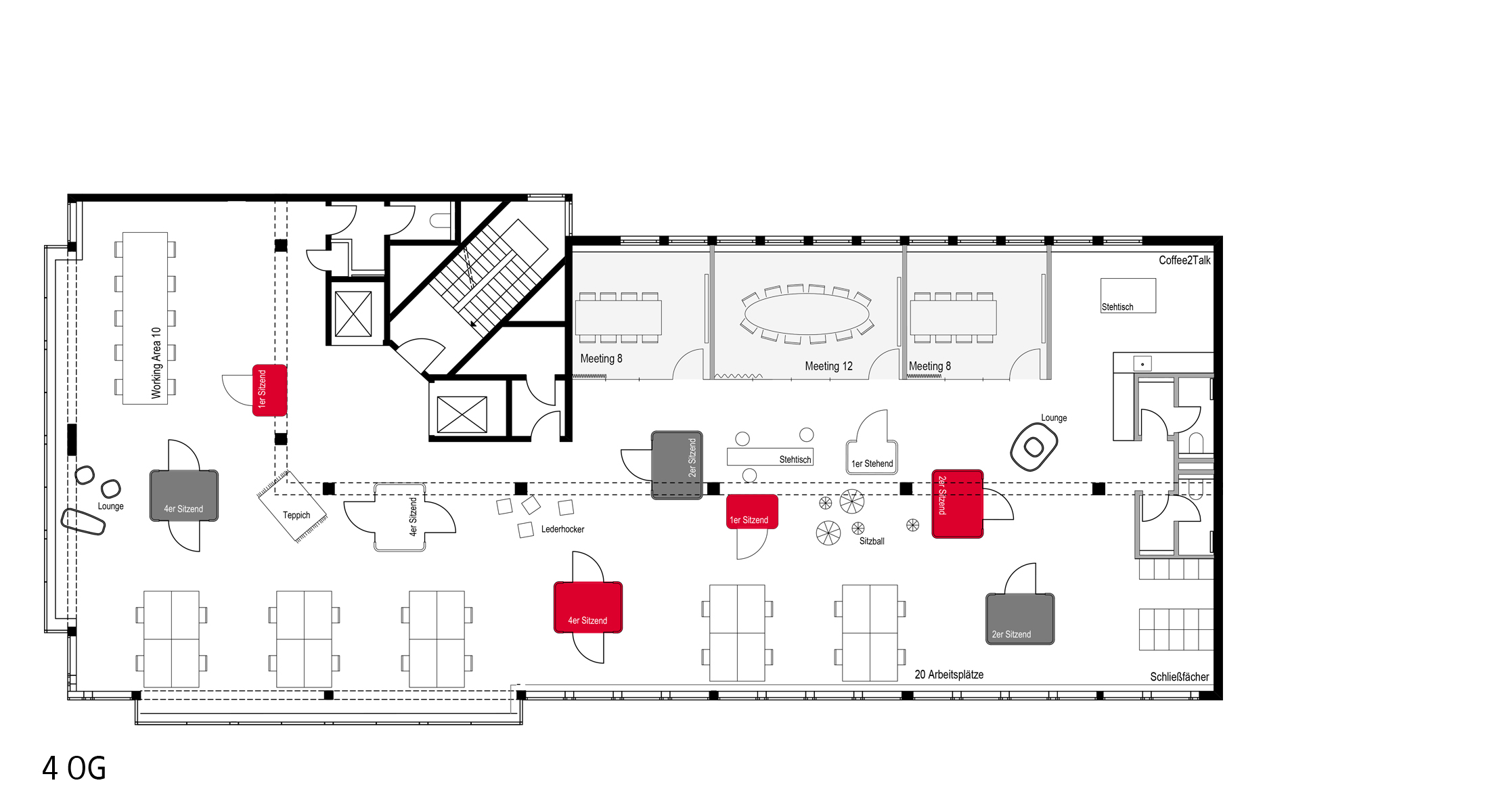
MEETINGRÄUME
Meetingräume unterschiedlicher Größen verteilen sich über alle Ebenen. Sie sind jeweils nur einseitig angeordnet. Zur offenen Bürolandschaft hin schließen sie mit einer Glaswand ab. Der Einblick kann mit Hilfe eines Vorhangs ausgeschaltet werden.

THEMENRÄUME
Themenräume, wie der Fitnessraum, die Bibliothek und der Eltern-Kind-Raum, evozieren Erfahrungen, die außerhalb der üblichen Arbeitsatmosphäre liegen und steigern damit die Produktivität der Mitarbeiter. Sie bieten mitunter ein Zusatzangebot, das einen Teil des alltäglichen Lebens abdeckt und damit die Bindung an das Unternehmen fördert.

COFFEE2TALK
In jeder Ebene gibt es eine kleine Teeküche, die eine spontane und beiläufige Kommunikation fördert. Die Teeküchen variieren in Lage und Größe und Ausstattung je Ebene.

CAFÉ
Zu einer großen Pause, lädt das öffentlich wirkende Café im Erdgeschoss ein. Der offene kommunikative Raum führt zu einem Austausch untereinander. Im angegliederten, introvertierten Garten kann man die Seele baumeln lassen und zur Ruhe kommen.

Projekt:
New Work LEO146

Ort:
München

Leistung:
Bürokonzept

Status:
Konzeptphase 2021-2022
Umsetzung 2022

Bruttogrundfläche (DIN 277):
3.408 m²

Geschosse:
6

Zusammenarbeit:
R.E.E.S GmbH