Umbau und Erweiterung Haus M, Dachau

Umbau und Erweiterung Haus M, Dachau

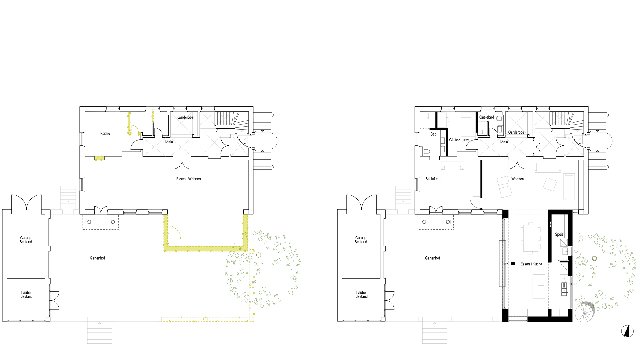
Der Umbau und die Erweiterung des Haus M schaffen die räumlichen Voraussetzungen für das Mit- und Nebeneinander Wohnen einer jungen Familie und den Großeltern unter einem Dach.

BESTAND
Am Altbau wurde in den 1960-er Jahren ein erdgeschossiger Anbau ergänzt. Dieser soll beseitigt und durch einen Größeren ersetzt werden. Dem Haus vorgelagert ist auf voller Breite ein ca. 9 m tiefer Terrassengarten. Er ist mit einer umlaufenden Stützmauer um ca. 1,0 m über das natürliche Gelände angehoben. Das Gelände ist eben.

ERWEITERUNG
Der neue Anbau ist ebenfalls erdgeschossig. Er reicht bis an die Südgrenze des Terrassenhofs und schließt exakt mit seiner Südgrenze ab. Mit dem bestehenden Garagen- und Wintergartengebäude im Westen entsteht eine dreiseitige Umfassung des Terrassenhofs. Das Flachdach wird als Dachterrasse genutzt.
Mit dem Anbau entsteht ein Ess- und Küchenbereich. Die Deckenhöhen sind differenziert. Im Zentralbereich beträgt die Raumhöhe 2,50 m und in den Randbereichen wie Küche, Sitzfenster, Fensterstürze, Sturz im Übergang zum Altbau reduziert sich diese auf 2,30 m.

UMBAU
Neben dem Anbau ermöglichen die minimalen Eingriffe im Erdgeschoss die Unterbringung der Räumlichkeiten für die Großeltern.
Die Abbruchmaßnahmen in den Obergeschossen schaffen einen großzügigen Wohnraum mit Dachterrasse für die junge Familie. Unter dem Dach entstehen durch die neue Raumgliederung Rückszugsmöglichkeiten für die Kinder. Die neuen Dachgauben bringen viel Tageslicht in die Räume.
Die Fassaden des Altbaus bleiben von den Baumaßnahmen unberührt.

Projekt:
Umbau und Erweiterung Haus M

Ort:
Dachau

Bauherr:
privat

Leistungsphasen:
1-5

Grundstücksfläche (§19 Abs. 3 BauNVO) :
1.338 m²

Grundfläche (§19 Abs. 2+4 BauNVO)
Gesamt:  489 m²

GRZ:
0,37

Geschossfläche (§20 Abs. 2+3 BauNVO):
419 m²

GFZ:
0,31

Wohnfläche (WoFlV):
Gesamt:  335 m²

Wohnungen:
2 WE

Tragwerksplanung:
Asen-Geiger-Rossberger PartmbB

Zusammenarbeit:
Jonas Baedeker Architektur
MxPa Architekturbüro Pfaffinger

Status:
abgeschlossen 2025