Wohnbebauung WR8, Kirchheim

Wohnbebauung WR8, Kirchheim

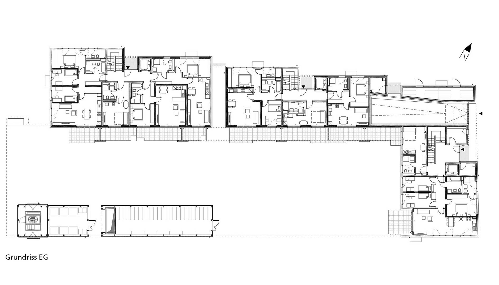
Städtebauliches Konzept
Der Bebauungsplan lies viel Spielraum für die volumetrische Konzeption. an den 4-geschoßigen Kopfbau fügt sich ein um ein Geschoß niedrigerer Längsbau an, der die diagonal verlaufende Baugrenze zum nördlichen Grünzug hin nutzt um eine rhythmisierende Staffelung der Fassade mit klarer Betonung der Hauszugänge herauszuarbeiten.

Wohnungsmix
Die Größe der Wohnungen reichen vom 1-Zimmer-Appartement bis zur 5-Zimmer-Wohnung mit Dachterrasse. Alle Wohnungen ab einer Größe von 3 Zimmern sind mit 2 Bädern / Duschbädern ausgestattet. Wohnungsmix und Wohnungsgrößen wurden auch im Hinblick auf die Vermeidung zusätzlicher PKW-Stellplätze optimiert. Die Wirtschaftlichkeit der Mittelgarage mit 42 Stellplätzen ist mit 23,7 m² je PKW sehr hoch.

Gestaltung
Die Fensteröffnungen sind ausschließlich als raumhohe Fenster, bzw. Fenstertüren konzipiert. Die massiven Außenwände werden mit zwei Putzstrukturen verschiedener Rauigkeit gegliedert. Das Farbkonzept folgt dem Prinzip der differenzierten Monochromie mit unterschiedlichen Materialien (Putz, Holz, Metalle) gleicher Farbwertigkeit. Die Flachdächer sind durchgängig begrünt.

Technik
Energiestandard ist KFW Effizienzhaus 55. Das Gebäude wird mit Fernwärme versorgt. Die Wärmeübergabe erfolgt dezentral durch Wärmetauscher in den Wohnungen.

Projekt
Wohnbebauung WR8 Kirchheim

Ort
Kirchheim bei München

Leistungsphasen
1-5

Wohnfläche
2.129 m²

Wohneinheiten
31

Geschossfläche
2.766 m²

Bruttorauminhalt
15.491 m³

Bauherr
DEMOS Wohnbau GmbH

Status
Fertigstellung 12/2021